
扫二维码查看手机官网
产品概述:
直线振动筛是双振动电机驱动。当两台振动电机做同步、反缶旋转时,其偏心块所产生的激振力在平行于电机轴线的方向相互抵消,在垂直于电机轴的方向叠为一合力,因此振动筛机的运动轨迹为一直线。两电机轴相对筛面有一倾角,在激振力和物料自重力的合力作用下,物料在筛面上被抛起跳跃式向前作直线运动,从而达到对物料进行筛选的目的。适用于粒度在0.074-5mm、含水量小于70%、无粘性的干式粉状物料的筛分。给料粒度不大于10mm。
主要应用行业:
直线振动筛筛分精度高、处理量大、结构简单、耗能少、噪音低、筛网使用密封性好、少粉尘溢散、维修方便、可用于流水线生产中的自动化作业。 该产品应用于化工、食品、塑料、冶金、玻璃、建材、粮食、化肥、磨料、陶瓷等行业中干式粉状或颗粒状物料的筛分。
技术参数:

安装尺寸:

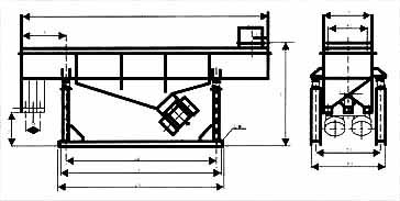
安装示意图:

产品型号:

联系人:徐先生
手机:13606278586
电话:0513-88622487
邮箱:haqtx@126.com
地址:江苏省南通市海安市曲塘镇
Copyright © 2022-2025 南通市恒昌石油机械有限公司 All rights reserved. 版权所有
中华人民共和国非经营性ICP编号:苏ICP备12021191号