
扫二维码查看手机官网
产品标准:
GB6063-85 YA圆振动筛
用途及特点
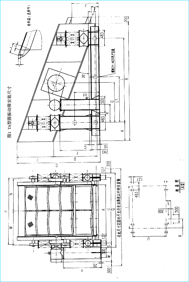
YA型圆振动筛运动轨迹为圆,全系列共有四十种规格,可供选煤、选矿、建材、电力及化工等部门作物料分使用。筛机振动噪声低,维修方便。
选用须知
1、筛机分单层和双层,并有轻型和重型之分。
2、筛网结构有纺织网、冲孔筛板。如果选用铁篦式筛板可按要求设计。
3、双层筛筛面选定的筛孔尺寸过技术性能及参数中规定的筛孔尺寸时,应按要求设计。
4、电动机可安装在左侧或右侧,无要求按安装图安装、供货。
5、给料箱为选择件,用户如有要求,可供给料箱。
6、在选用时如有改变筛面倾角的要求,可另行设计。
7、基础螺栓由用户自备。
产品型号表示示例
2YAH18-36
2-双层(单层不注)
Y-圆运动
A-轴偏心
H-重型筛(轻型不注)
18-筛面宽度(分米)
36-筛面长度(分米)
技术性能及参数




联系人:徐先生
手机:13606278586
电话:0513-88622487
邮箱:haqtx@126.com
地址:江苏省南通市海安市曲塘镇
Copyright © 2022-2025 南通市恒昌石油机械有限公司 All rights reserved. 版权所有
中华人民共和国非经营性ICP编号:苏ICP备12021191号